Appartamento in Vendita
NUOVA COSTRUZIONE - ULTIMO ALLOGGIO DISPONIBILE PRONTA CONSEGNA - CENTRO Rivoli - VIA PIAVE 50 - ALLOGGIO 1C-
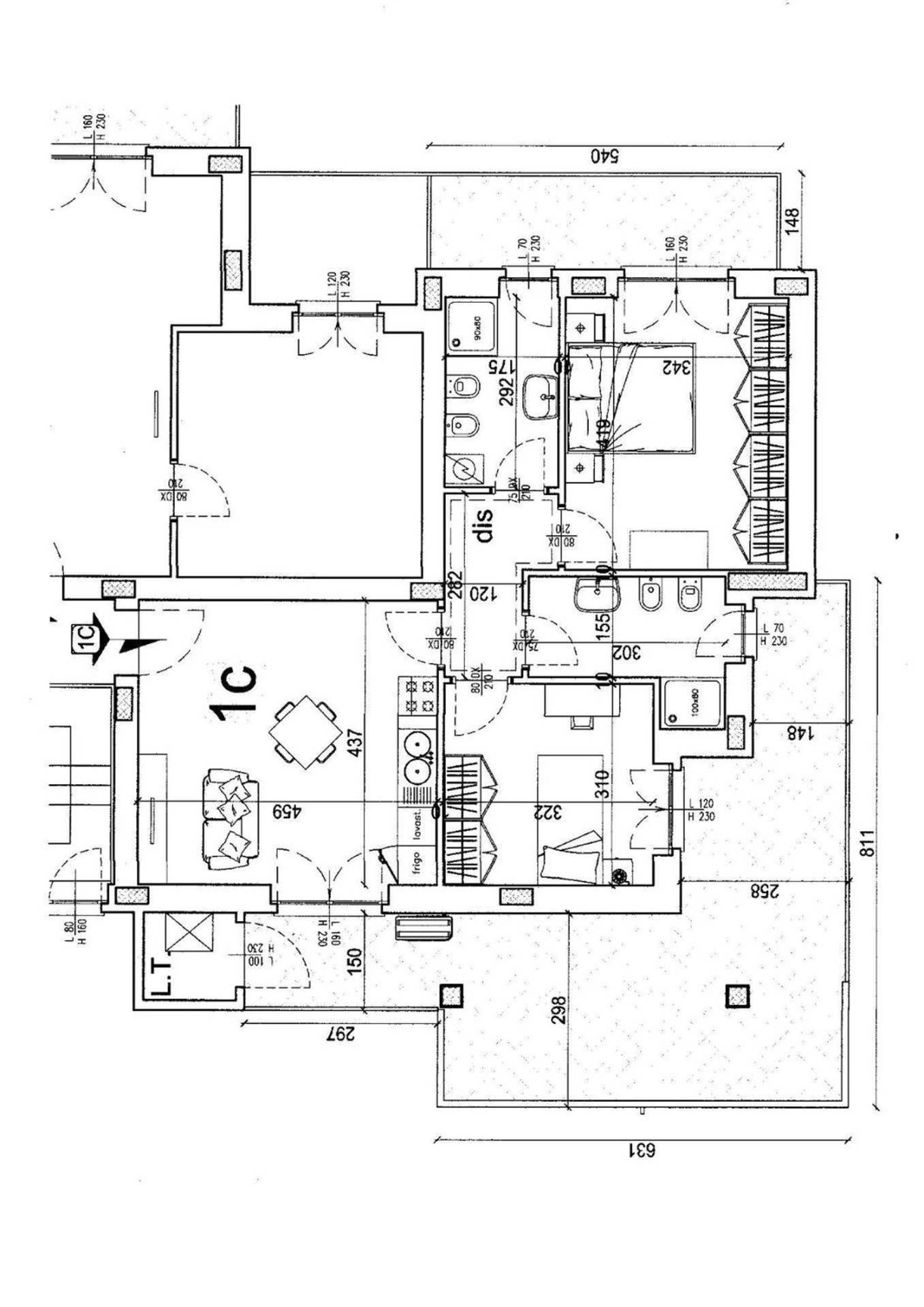
A poche centinaia di metri da Corso Susa, prestigioso Appartamento al piano 1° di mq. 91, con tre arie, ampi balconi e ampio terrazzo, composto da ingresso living su ampio soggiorno con parete cucina a vista, due camere, doppi servizi con porta finestra e cantina.
Volendo box auto a parte.
L'edificio è senza barriere architettoniche ed è dotato di ascensore.
Riscaldamento e raffrescamento a pavimento garantendo un ambiente confortevole in ogni stagione.
L'Appartamento è dotato di una coibentazione termica e acustica di altissimo livello e pannelli fotovoltaici con elevata efficienza energetica A4.
Possibilità di mutuo - Consideriamo Permute!
Classe energetica








































