Dimora Storica in Vendita
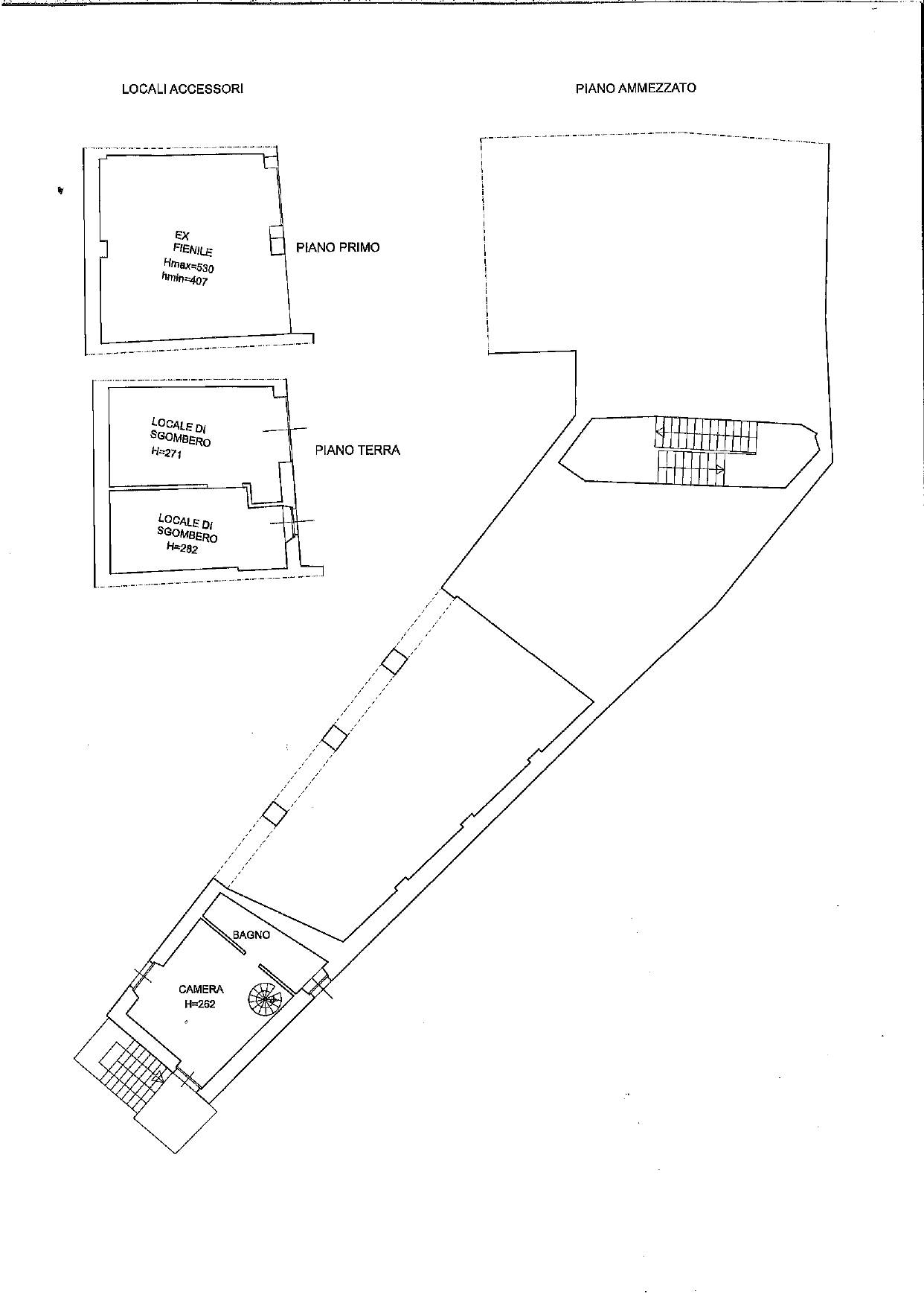
Casa dei Conti Radicati di Primeglio. In Centro Paese proponiamo affascinante Dimora Storica libera su tre lati, appartenuta a Giovanni Battista Polledro noto violinista dell'800. La proprietà posizionata all'interno di un 'ampia corte comune piantumata, sulla quale si affacciano altre due unità immobiliari. Per accedere al corpo principale possiamo usufruire dell'ingresso dalla corte, oppure direttamente dall'ingresso di via Antonio Peiro. L'edificio principale elevato a tre piani fuori terra è composto al piano rialzato da un ingresso, cucinotta, salone doppio, due camere e due bagni, al piano superiore sei camere e due bagni, valorizzato da un terrazzo di circa 150 mq con vista sulle colline astigiane. Al piano sottotetto tre locali di sgombero con belvedere e vista sulla Chiesa Barocca dedicata ai Santi Pietro Giorgio. Al piano interrato una cantina scavata nel tuffo. Adiacente al corpo principale troviamo un ampio porticato confinante con una depandance formata da due camere. All'interno della corte comune un locale magazzino con locale di sgombero (ex fienile). completa la proprietà un giardino terrazzato di circa 570 mq.
In collaborazione con La Casa di Castel Nuovo Don Bosco
Classe energetica
EP glnr: 547.06 kwh/m²





























